5. Localizzazione, spazi e accessibilità

5.1 - Note generali sull’ipotesi di fattibilità per il recupero ed il riuso del castello di Torre del Gallo

La complessità dell’intervento nel suo insieme, la diversità delle tematiche interessate, la particolare connotazione sia architettonica che paesaggistica del tema, ed il notevole impegno finanziario portano inevitabilmente ad una ipotesi di suddivisione sia in tempi che in fasi dell’intero progetto. Questo, se da un lato offre la possibilità di diluire l’impatto economico, dall’altro implica un’attenzione particolare nella individuazione delle varie fasi, al fine di evitare sfalsamenti operativi o diseconomie realizzative. La scelta delle priorità implica però alcune considerazioni di partenza, utili e necessarie per comprendere l’ambito in cui si dovrà muovere il progetto, sia nel suo complesso che nelle singole fasi.

L’esistenza del Castello infatti, testimonianza importante e ben visiva non può prescindere, al di là della nuova utilizzazione, dal recupero dello stesso a livello architettonico strutturale e filologico.

Non essendo però il progetto finalizzato al solo recupero di Torre del Gallo, sarebbe fuori luogo impegnare risorse economiche ingenti per diversi anni, senza attivare l’altro aspetto dell’intervento e cioè il Museo ed il Planetario.

Si può ben comprendere come scaturisca la necessità di individuare delle fasi di lavoro compatibili, legate ad una logica sequenzialità operativa e che possano permettere una realizzazione a gradi dell’intero progetto, anche per darne una visibilità fin dai primi tempi.

In questa ottica si sono individuate cinque fasi, suscettibili comunque ad essere, entro certi limiti, accorpate o ulteriormente disgiunte.

5.2 - Note illustrative al progetto

Piano interrato

La situazione attuale è costituita da un corridoio, perimetrale per tre lati del Castello, piuttosto ampio e di altezza praticabile, in cui insistono dei piccoli manufatti di ridotte dimensioni.

Sono poi da verificare sia l’esistenza di cunicoli, molto probabili, verso l’esterno, sia l’esistenza di altri vani al di sotto del piano terra del Castello. Prescindendo, comunque, da tali ipotesi, lo studio progettuale a questo livello prevede i seguenti interventi:

  • creazione di un vano scala e di un ascensore che dall’ingresso del piano terra possa mettere in comunicazione il livello sottostante, con particolare riferimento al Planetario ed ai laboratori annessi.
  • restauro del corridoio esistente. Le dimensioni e l’ubicazione di questo passaggio ne fanno sia un’ideale percorso di collegamento, sia un idoneo spazio per l’alloggiamento dei servizi tecnologici e tecnici, liberando così, ad altri piani, spazi più spendibili. La previsione, inoltre, di dotare il piano seminterrato di propri impianti e servizi, permetterebbe una utilizzazione autonoma e separata dal resto del Castello.
  • scavo cortile principale A completamento ed integrazione del Planetario vanno localizzati gli spazi per i laboratori. La più idonea collocazione è stata individuata al di sotto del cortile principale e questo per più motivi: la vicinanza, ed anzi, la quasi contiguità con il Planetario e la necessità di utilizzare le potenzialità del Castello senza interessare zone previste per altre destinazioni. Lo spazio, inoltre, di forma regolare, con prese di luce al di sopra del solaio, si presta ad una successiva nuova suddivisione con pareti mobili, oppure ad essere lasciata ad open space con indubbi vantaggi che tale flessibilità comporta.

Elemento qualificante comunque, sia a questo livello, che nel progetto nel suo insieme, è il nuovo Planetario. L’affrontare questo aspetto pone indubbiamente quesiti di ordine diverso, quali la scelta del sito, le caratteristiche dimensionali, gli aspetti realizzativi e le sistemazioni esterne.

La zona prescelta deriva dalla considerazione di lasciare gli altri lati degli esterni liberi, per utilizzi più legati al percorso museale ed all’utilizzo del Castello nel suo insieme. Il Planetario, di dimensioni 615 mq, verrebbe ad avere un anello di contorno di larghezza 3,30 m attrezzato anche a percorso didattico, in modo da essere, oltre che elemento funzionale, anche supporto informativo alla zona laboratori ed al Planetario stesso. Quest’ultimo, in parte interrato ed in parte fuori terra (il culmine della cupola di circa 6,30 m fuori terra) avrebbe una capacità, in contemporanea, di circa 200 utilizzatori che verrebbero comunque movimentati da ingressi ed uscite diverse, in modo da poter programmare un turnover nel migliore dei modi. Avrebbe inoltre uscite separate verso l’esterno in modo da garantire sia la sicurezza, sia la reimmissione nel percorso esterno. Infine, le sistemazioni esterne, prossime alla cupola, dovrebbero riprendere l’andamento del terreno e comunque essere inserite nel progetto generale delle sistemazioni e dei percorsi.

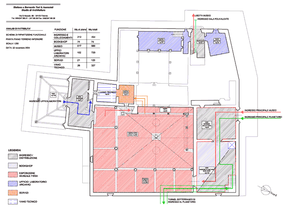
Piano interrato

Piano terreno – quota inferiore

Una delle migliori potenzialità del castello è l’esistenza di tre ingressi nei tre lati principali. Proprio questa caratteristica permette di svincolare al meglio i percorsi delle diverse destinazioni che si possono così riassumere con i rispettivi interventi:

Ingresso principale (lato nord Firenze): è costituito da due saloni per complessivi circa 200 mq, dove sarebbero collocati la zona biglietteria, bookshop, informazioni, sia per il percorso museale che per il Planetario.

Punto centrale del Museo è il cortile principale costituito dal loggiato su due lati e dalla zona attualmente scoperta. La prospettata copertura, in tipologia costruttiva leggera e trasparente, oltre che poter far disporre di una maggiore superficie di esposizione (circa 283 mq), manterrebbe il rapporto esterno-interno, spazi-chiusi, spazi aperti, terra-cielo, che rappresenta un elemento importante del Museo. Il percorso poi, si articolerebbe sul piano Terra a quota maggiore mediante un esistente scala-ballatoio. Al di sotto, verrebbero ubicati i servizi del piano, tali da non interferire nel percorso, ma ad esso comunque contigui.

Il secondo ingresso, lato ovest, laterale destro rispetto a quello principale, verrebbe utilizzato come uscita dal percorso museale, e direttamente inserito, poi, nel percorso esterno. I due vani contigui, potrebbero essere utilizzati come officina/deposito/magazzino, essendo privi di illuminazione naturale, ma sempre di discreta superficie (100 mq circa).

Per il terzo ingresso (lato sud) essendo decentrato rispetto agli altri, è stato ipotizzato l’utilizzo per gli addetti ai lavori. Si tratta di un ingresso, comunque, importante, protetto da un loggiato di oltre 100 mq, antistante il vano interno d’ingresso di circa 80 mq. Quest’ultimo, oltre a svincolare la nuova zona scale-ascensore per i piani superiori, ha anche la possibilità di comunicare con il percorso museale facilitando quindi anche esigenze eventuali di collegamento orizzontale.

Piano terreno - inferiore

Piano terra – quota superiore

Questo livello comprende essenzialmente tre funzioni:

  • vano di distribuzione (scale-ascensore) per la parte operativa (uffici, biblioteca).
  • grande hall (circa 110 mq) d’ingresso per la Sala Polivalente al piano superiore e per la zona caffetteria e zona museale. L’atrio (Hall) è uno degli elementi più qualificati e sintomatici del Castello. È, infatti, pienamente presente lo spirito eclettico ed è sintesi dell’operato del Bardini, che fa di questa zona, una delle più particolari di tutto il Castello.
  • una terza zona, più importante a livello di superficie, costituita dal cortile e loggiato perimetrale. Questa rappresenta, a differenza di altre zone, uno degli aspetti originali e interessanti solo marginalmente, dell’operato del Bardini.

Si è ipotizzato, anche a questo livello, di realizzare una copertura trasparente, anche se dimensionalmente più piccola rispetto a quella del cortile principale, con il medesimo obbiettivo di aumentare la superficie espositiva (mq 73) mantenendo il rapporto con l’esterno. Anche in questo cortile l’esistenza delle colonne può essere spunto per il percorso museale che avrebbe come punto di arrivo, prima di passare all’esterno, l’atrio (Hall) del lato ovest.

Piano terreno - superiore

Piano primo

È questo il livello in cui si distribuisce maggiormente la superficie esistente del Castello ed in cui sono presenti alcuni degli elementi più qualificanti dello stesso.

Le tre tipologie che si riscontrano si possono così riassumere:

  • salone di grandi dimensioni (260 mq circa) con significativi affacci su Firenze.
  • loggiati su tre lati (270 mq circa) articolati ma ben collegati tra loro.
  • serie di vani (323 mq circa) passanti per la quasi totalità, ma utili come supporto operativo per il funzionamento del Museo e per le attività connesse.

Partendo da queste caratteristiche oggettive, la proposta si articola nell’utilizzo del salone principale come spazio polivalente (incontri, esposizioni temporanee a tema, etc.) dotato di un ingresso separato dal piano terra, di propri servizi, di spazi intermedi di sosta e supporto che si salderebbero con la zona caffetteria. L’ubicazione di questa è suggerita dai loggiati, che dotati di infissi in metallo e vetro, arretrati rispetto alle colonne, assicurerebbero una piena funzionalità senza alterare l’equilibrio dei vuoti e dei pieni dei prospetti del Castello. La caffetteria, proprio per la particolare posizione, decentrata rispetto ai vari percorsi, ha una propria autonomia organizzativa, ma può supportare tutte le funzioni che trovano collocazione del Museo. Anche per questa zona sono previsti servizi autonomi. La parte operativa (uffici, biblioteca) verrebbe invece ubicata nelle due rimanenti ali del Castello, servita da un proprio ingresso dal piano terra (loggiato lato sud) da un proprio vano scale e con una zona separata di servizi. Trattandosi comunque, esclusa la biblioteca, di vani passanti, dovrà essere studiato un arredo che, senza penalizzarne la tipologia, possa assicurarne la fruibilità, anche se con concezione utilizzativa diversa da quella tradizionale.

Piano primo

Piano secondo

A questo ultimo livello è presente, oltre la torre principale, un vano nel lato nord al di sopra della biblioteca.

Trattasi di una superficie di media entità (85 mq circa), dotata di finestre su tre lati e svincolata dal medesimo vano scale/ascensore della zona uffici/biblioteca. È quindi logicamente legata a questi ultimi spazi e relative utilizzazioni, mantenendo comunque la possibilità di una suddivisione interna per eventuali esigenze specifiche.

Piano secondo

Piano terzo

Oltre alla torre principale, si trova a questo livello una soffitta, soprastante il vano presente al piano secondo, non utilizzabile per destinazione lavorativa o assimilabile per l’altezza insufficiente, ma estremamente confacente alla ubicazione di impianti tecnici. Questa opportunità può sembrare marginale nel contesto così ampio ed articolato del Castello, ma può contribuire alla risoluzione dei problemi impiantistici che rappresentano, per questa tipologia d’interventi, un momento sempre delicato e complesso.

Piano terrzo

Tabella 1 - Riepilogo delle superfici

Destinazione d’uso

mq

Ingresso e collegamenti

454

Book-shop

74

Museo

986

Sala polivalente

258

Vani supporto delle attività museali

150

Uffici, laboratori, archivio

720

Servizi

120

Caffetteria

241

Vani tecnici

327

Vano torre

292

Planetario

615

Totale

4.237

5.3 - Proposta di suddivisione dei lavori in cinque lotti

Prima fase

Il primo intervento consiste nel mettere in sicurezza il Castello per eliminare un ulteriore degrado e per preparare la struttura agli interventi successivi.

Ci si riferisce in particolare alle coperture, ai paramenti murari, alle colonne, ai merli delle torri, agli elementi lapidei, alla regimazione delle acque, alla realizzazione di ponteggi.

Per questa tipologia di lavori può essere richiesto il contributo al Ministero. A tal fine è stato presentato un progetto generale di intervento già approvato dalla Soprintendenza per i Beni Architettonici ed Artistici e per il Patrimonio Storico Artistico e Demoetnoantropologico per le Province di Firenze, Prato e Pistoia.

Questa fase è molto articolata e necessita di attenzione e cautela. La particolare struttura del Castello, le differenti situazioni architettoniche, decorative, con cambiamenti innumerevoli di forme, dimensioni, materiali e relativo degrado impongono, infatti, un intervento estremamente attento sia dal punto di vista filologico, che operativo.

Gli interventi che formerebbero il primo lotto, si possono riassumere sinteticamente in:

  • formazione di cantiere
  • creazione di ponteggi
  • restauro delle coperture
  • restauro dei paramenti murari
  • restauro degli elementi architettonici e decorativi
  • regimazione delle acque
  • smontaggio dei ponteggi

Tempo continuativo di lavoro previsto: 18 mesi

Costo stimato degli interventi: € 4.000.000/4.500.000

Seconda fase

Nella seconda fase è previsto un duplice intervento. Da un lato, infatti, si darebbe corso alla realizzazione del nuovo planetario, dall’altro sarebbe necessario annettere una porzione del Castello che risulterebbe legata al funzionamento del planetario stesso. Ci si riferisce all’ingresso, zona book-shop , ai laboratori e relativi impianti tecnologici, ad una sistemazione esterna di una prima parte.

Le categorie dei lavori si possono così riassumere:

  • scavo cortile principale e realizzazione della nuova zona interrata
  • restauro dei sotterranei
  • restauro dei due grandi vani d’ingresso e creazione di un nuovo vano scale ed ascensore
  • creazione dei laboratori al piano interrato
  • creazione degli impianti tecnici/tecnologici al piano interrato.

Tempo continuativo di lavoro: 24 mesi

Costo stimato degli interventi: € 4.000.000/4.500.000

Terza fase

È la fase che investe direttamente l’interno del Castello, finalizzata sia al restauro che al nuovo utilizzo. È un momento impegnativo in quanto vengono affrontate le problematiche inerenti il consolidamento, le variazioni distributive, il recupero di particolari architettonici e decorativi, la preparazione agli impianti, su tutta la superficie e a vari livelli.

Tali interventi si possono così riassumere:

  • rimozione dei pavimenti, smontaggio di parte dei soffitti
  • creazione dei vani ascensori e nuovo vano scale
  • consolidamento delle strutture
  • modifiche distributive
  • restauro elementi architettonici

Tempo continuativo di lavoro previsto: 12 mesi

Costo stimato degli interventi: € 4.500.000/5.000.000

Quarta fase

Innumerevoli volte l’approccio impiantistico in strutture di rilievo storico ed architettonico, pone una serie di problematiche operative e di scelte metodologiche di non semplice soluzione o addirittura di impossibile percorribilità.

L’utilizzo, inoltre, di una struttura ad uso pubblico, impone l’osservanza di norme precise e mirate per le varie funzioni previste.

Nel caso particolare del Castello, soprattutto al livello del piano primo, vi sono invece spazi esistenti tra i solai ed i soffitti per il passaggio degli impianti, per la ispezionabilità degli stessi, senza soluzioni invasive o particolarmente impegnative dal lato finanziario.

La rimozione dei pavimenti, l’esistenza di innumerevoli cavedi verticali, l’esistenza di un sotterraneo perimetrale, permettono inoltre di affrontare e risolvere i problemi impiantistici da diversi lati con più possibilità di intervento e di scelte operative.

In questa fase dovrebbero essere svolte le seguenti operazioni:

  • assistenza per l’installazione degli impianti
  • installazione impianto di climatizzazione (V.R.V.) e riscaldamento.
  • installazione impianto idrico/sanitario/smaltimento acque (depuratore)
  • installazione impianto elettrico
  • installazione impianto rilevazione fumo-antincendio
  • installazione impianto allarme
  • installazione impianti speciali
  • installazione ascensori
  • intonaci

Tempo continuativo di lavoro previsto: 12 mesi

Costo stimato degli interventi: € 3.000.000/3.500.000

Quinta fase

Particolarmente importante e qualificante per l’intervento nel suo insieme, è il complesso dei lavori che comprendono una larga fascia di interventi, tesi a dare l’opera completa e funzionale, almeno a livello di contenitore.

Si tratta di opere che necessariamente devono seguire gli impianti e precedere gli arredi e l’uso operativo della struttura. Viste le caratteristiche peculiari di quest’ultima la tematica del completamento dovrà essere particolarmente accurata. La tipologia degli infissi dei loggiati e delle coperture dei cortili, dovrà, oltre che nella leggerezza costruttiva e tipologica, assicurare sia un utilizzo congruo per la destinazione, sia mantenere il rapporto esterno/interno, spazi chiusi/spazi aperti, terra/cielo, che dovrebbe essere il motivo peculiare del recupero del Castello.

Il restauro dei soffitti lignei, ove presenti, degli intonaci e il recupero delle tonalità cromatiche delle pareti, i pavimenti interni, dovranno inoltre essere i punti conclusivi del restauro del Castello.

In questa fase, dovrebbero essere svolte le seguenti operazioni:

  • coperture cortili, infissi interni-esterni
  • opere di restauro soffitti
  • opere di imbianchino-decoratore
  • posa in opera pavimenti-servizi.
  • posa in opera quadri elettrici e speciali, gruppo frigorifero, centrale termica
  • finiture
  • sistemazioni esterne.
  • viabilità - segnaletica

Tempo continuativo di lavoro previsto: 20 mesi

Costo stimato degli interventi: € 4.000.000/4.500.00

Tabella 2 - Riepilogo dei costi per lotto

Riepilogo dei costi

stima min

stima max

Prima fase

€ 4.000.000,00

€ 4.500.000,00

Seconda fase

€ 4.000.000,00

€ 4.500.000,00

Terza fase

€ 4.500.000,00

€ 5.000.000,00

Quarta fase

€ 3.000.000,00

€ 3.500.000,00

Quinta fase

€4.000.000,00

€ 4.500.000,00

Totale

€ 19.500.000,00

€ 22.000.000,00